Piso situado en Xeresa, donde la tranquilidad de la montaña se encuentra con la cercanía del mar.
Descripción
Un refugio de serenidad entre la montaña y el mar donde el confort y las vistas se convierten en protagonistas.
Pisosituado en Xeresa, una encantadora localidad de la costa valenciana que destaca por su tranquilidad, su entorno natural y su excelente conexión con el mar. Ubicada a escasos minutos de Gandía, Xeresa combina el estilo de vida mediterráneo con la privacidad de un entorno residencial cuidado, rodeado de montañas y con rápido acceso a extensas playas de arena fina, convirtiéndose en un enclave ideal tanto para residencia habitual como para segunda vivienda de alto nivel.
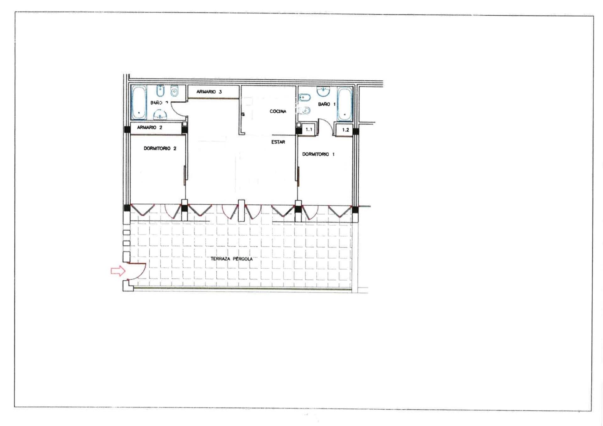
La propiedad ofrece una distribución funcional y luminosa, compuesta por dos dormitorios dobles y dos baños completos, diseñados para garantizar el máximo confort y privacidad. El salón comedor, integrado con una moderna cocina office completamente equipada, crea un espacio abierto y acogedor, ideal para disfrutar tanto del día a día como de momentos de ocio. Desde aquí se accede a una amplia terraza que regala vistas despejadas a la montaña, aportando una sensación de amplitud y conexión con la naturaleza difícil de igualar.
El apartamento dispone además de galería independiente, aire acondicionado frío/calor por split y se entrega completamente amueblado, listo para entrar a vivir. Incluye plaza de garaje en el precio, aportando un valor añadido en comodidad y seguridad.
La urbanización ofrece cuidadas zonas comunes con piscina, amplias áreas ajardinadas, así como zona de gimnasio y vestuarios, concebidas para el bienestar y el disfrute diario en un entorno exclusivo. Su ubicación estratégica permite acceder fácilmente a todos los servicios de Xeresa, así como a la playa, situada a tan solo 5 kilómetros, ofreciendo así el equilibrio perfecto entre montaña y mar.
Características
Superficie
Metros Construidos:
75.00m2
Distancia al Mar:
5000m
Planta:
3
Distribución
Habitaciones:
2
Baños:
2
Año de construcción:
2019
Datos Basicos
Estado:
Buen estado
Vistas:
Montaña
Tipo Calefacción:
Split en pared
Agua Caliente:
Termo Electrico
Comunidad:
113€
Peridicidad de la comunidad:
MES
I.B.I.:
208.00€
Video y Tour Virtual
Mapa
Propiedades relacionadas
REF: P-7787
Piso situado en Xeresa, donde la tranquilidad de la montaña se encuentra con la cercanía del mar.
75.00m2
2
2




























